Добавить объект размещения

Sixty80 Design Hotel

Майами-Бич, 6080 Collins Avenue
Забронировать
Цена за 1 ночь от
14 261 руб.
8.3/10 Хорошо 503 оценки
До центра города: 5.8 км
До аэропорта: 17.2 км
До Атлантического океана США: 197 м
Отель предлагает гостям:

Есть парковка

Бесплатный Wi-Fi

Рядом с отелем есть:
Майами-Бич Броадвалк

Четырехзвездочный дизайн-отель Sixty80 расположен в городе Майами-Бич.

К услугам гостей номера с собственным балконом.

В отеле можно забронировать семейные номера.

В распоряжении гостей терраса.

Стойка регистрации работает круглосуточно.

Гости могут посещать открытый бассейн и фитнес-центр.

В числе удобств всех номеров — кондиционер, гостиная зона, телевизор с плоским экраном и спутниковыми каналами, мини-кухня, обеденная зона, сейф и собственная ванная комната с душем, феном и бесплатными туалетно-косметическими принадлежностями.

В каждом номере дизайн-отеля Sixty80 предоставляются полотенца и постельное белье.

В 200 метрах находится пляж Майами-Бич, а в 6 км — Мемориал жертвам Холокоста.

Расстояние от дизайн-отеля Sixty80 до базы гидросамолетов Майами составляет 9 км.

Услуги в отеле Sixty80 Design Hotel

Введите предполагаемые даты поездки, для просмотра стоимости номеров
Дата заезда
—.—.—
Дата выезда
—.—.—
Гостей
2
Взрослых
Детей
Категория номера Гостей
Студио (Номер-студио «Гарден Хаус» с террасой) отеля Sixty80 Design Hotel, Майами-Бич
5
49 м2
Укажите дату, чтобы узнать
стоимость
Студио (Люкс-студио с балконом, со стороны океана) отеля Sixty80 Design Hotel, Майами-Бич
6
47 м2
Кровати: односпальная кровать и кровать King-size
Бесплатный Wi-Fi
Укажите дату, чтобы узнать
стоимость
Студио (Угловой номер-студио в пентхаусе с балконом) отеля Sixty80 Design Hotel, Майами-Бич
11
50 м2
Укажите дату, чтобы узнать
стоимость
Студио (Номер-студио в пентхаусе с балконом, со стороны океана) отеля Sixty80 Design Hotel, Майами-Бич
9
40 м2
Кровати: односпальная кровать и кровать King-size
Бесплатный Wi-Fi
Укажите дату, чтобы узнать
стоимость
Студио (Номер-студио в пентхаусе с балконом, со стороны залива) отеля Sixty80 Design Hotel, Майами-Бич
7
41 м2
Укажите дату, чтобы узнать
стоимость
Студио (Угловой номер-студио с большим балконом, со стороны залива) отеля Sixty80 Design Hotel, Майами-Бич
8
68 м2
Укажите дату, чтобы узнать
стоимость
Студио (Номер-студио с балконом, со стороны залива) отеля Sixty80 Design Hotel, Майами-Бич
7
40 м2
Укажите дату, чтобы узнать
стоимость
Студио (Номер-студио «Городской» с балконом) отеля Sixty80 Design Hotel, Майами-Бич
6
43 м2
Укажите дату, чтобы узнать
стоимость
Сьюит (Угловой люкс с 1 спальней и двойным балконом) отеля Sixty80 Design Hotel, Майами-Бич
7
65 м2
Кровати: односпальная кровать или кровать King-size
Бесплатный Wi-Fi
Укажите дату, чтобы узнать
стоимость
Сьюит (Люкс с 1 спальней и балконом, со стороны океана) отеля Sixty80 Design Hotel, Майами-Бич
8
54 м2
Кровати: односпальная кровать или кровать King-size
Бесплатный Wi-Fi
Укажите дату, чтобы узнать
стоимость
Сьюит (Угловой люкс в пентхаусе с 1 спальней и террасой) отеля Sixty80 Design Hotel, Майами-Бич
11
72 м2
Кровати: односпальная кровать или кровать King-size
Бесплатный Wi-Fi
Укажите дату, чтобы узнать
стоимость
Сьюит (Люкс в пентхаусе с 1 спальней и балконом, со стороны океана) отеля Sixty80 Design Hotel, Майами-Бич
8
53 м2
Кровати: односпальная кровать или кровать King-size
Бесплатный Wi-Fi
Укажите дату, чтобы узнать
стоимость
Сьюит (Люкс с 1 спальней и балконом, со стороны залива) отеля Sixty80 Design Hotel, Майами-Бич
7
52 м2
Кровати: односпальная кровать или кровать King-size
Бесплатный Wi-Fi
Укажите дату, чтобы узнать
стоимость
Сьюит (Угловой люкс с 1 спальней, террасой и очень большим балконом) отеля Sixty80 Design Hotel, Майами-Бич
11
124 м2
Кровати: односпальная кровать или кровать King-size
Бесплатный Wi-Fi
Укажите дату, чтобы узнать
стоимость
Сьюит (Люкс «Городской» с 1 спальней и балконом) отеля Sixty80 Design Hotel, Майами-Бич
5
54 м2
Кровати: односпальная кровать или кровать King-size
Бесплатный Wi-Fi
Укажите дату, чтобы узнать
стоимость
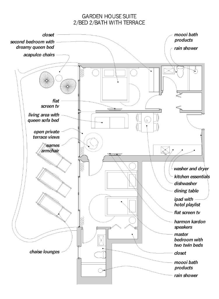
Сьюит (Люкс «Гарден Хаус» с 2 спальнями и террасой) отеля Sixty80 Design Hotel, Майами-Бич
13
123 м2
Кровати: две односпальные кровати или односпальная кровать или кровать King-size
Бесплатный Wi-Fi
× 5
Укажите дату, чтобы узнать
стоимость
Сьюит (Люкс с 2 спальнями и балконом, со стороны океана) отеля Sixty80 Design Hotel, Майами-Бич
14
101 м2
Кровати: односпальная кровать или кровать King-size или кровать King-size
Бесплатный Wi-Fi
× 5
Укажите дату, чтобы узнать
стоимость
Сьюит (Люкс «Городской» с 2 спальнями и маленьким балконом) отеля Sixty80 Design Hotel, Майами-Бич
8
97 м2
Кровати: односпальная кровать или кровать King-size или кровать King-size
Бесплатный Wi-Fi
× 5
Укажите дату, чтобы узнать
стоимость
8.3
Рейтинг отеля
на основе 503 оценок
Гостям нравится

Расположение

8.5

Обслуживание

8.9

Цена/качество

8.3

Чистота

8.7

Питание

0

Качество сна

8.9

Вы хотите написать отзыв на этот объект?
Открыть панораму рядом с Sixty80 Design Hotel
Sixty80 Design Hotel
Майами-Бич, 6080 Collins Avenue
До центра города: 5.8 км
До аэропорта: 17.2 км
До Атлантического океана США: 197 м
Отели рядом
Проверка брони
Мой поиск